POJ 1177 (线段树+离散化+扫描线),题目链接为http://poj.org/problem?id=1177
在做本题之前,必须先了解什么是线段树和离散化,请看前一篇博文线段树(segment tree),里面对线段树和离散化的说明相对比较清楚了。
对于这题,我们的思路步骤如下(代码和下面的文字解释结合着看):
1.对于输入的N个矩形,有2*N条纵向边,我们把这些边叫做扫描线
2.建立一个struct ScanLine,保留这些扫描线
struct ScanLine { int x;//横坐标 int y1;//扫描线的下端点 int y2;//扫描线的上端点 int flag;//若该扫描线属于矩形的左边的竖边,如AB,则叫做入边,值为1,若属于矩形的右边的竖边,如CD,则叫做出边,值为0 };
3.建立数组struct ScanLine scan[LEN];保存输入值,同时用y[LEN]保存所有的纵向坐标
4.对scan数组进行排序,即所有竖边从左往右排序;对y排序并去除重复值,然后离散化,建立线段树。(PS:线段树的node[i].left和node[i].right保存的都是离散化的值,y[node[i].left]和y[node[i].right]保存的就是实际值,这个在代码中很容易理解)
线段树节点struct Node
struct Node { int left; int right; int count;//被覆盖次数 int line;//所包含的区间数量,如三条[1,2],[2,3],[4,5]线段被覆盖,则line=2,因为 [1,2],[2,3]是连续的。这个是用来辅助计算横边的,如图,在AB和EG之间的横边AK和BL,它们是边界,line=1,|AB|+|EG|=2*line*|AB| int lbd;//左端点是否被覆盖,用来辅助对line的计算 int rbd;//右端点是否被覆盖,用来辅助对line的计算 int m;//测度,即覆盖的区间长度,如[2,8]就为6 };

好的,上面建立了大的框架,然后就开始扫描了。
1.将排序后的scan数组依次输入,执行插入线段insert函数(为入边)或者remove函数(为出边),同时更新m和line
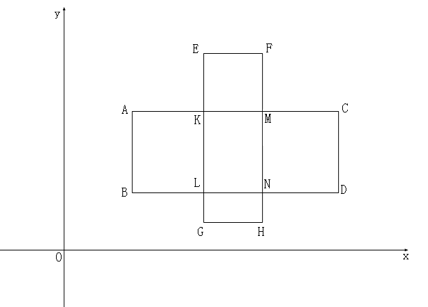
2.没扫描一次,就要计算一次周长perimeter,这里我们以图中的例子来讲解过程:
首先是AB,它被插入线段树,perimeter = perimeter + |AB|;
然后是EG,它被插入线段树,此时线段树的root节点的测度为|EG|的值,但由于之前之前加过|AB|,因而应该减去|AB|,其实就是减去|KL|,然后再加上line*2*|AK|,这里的line的值是未插入EG时线段树的根节点的line值。
具体代码如下:
#include <stdio.h> #include <algorithm> #define LEN 10000 using namespace std; struct Node { int left; int right; int count;//被覆盖次数 int line;//所包含的区间数量 int lbd;//左端点是否被覆盖 int rbd;//右端点是否被覆盖 int m;//测度 }; struct ScanLine { int x; int y1; int y2; int flag; }; struct Node node[LEN*4]; struct ScanLine scan[LEN]; int y[LEN]; void build(int l, int r, int i) { node[i].left = l; node[i].right = r; node[i].count = 0; node[i].m = 0; node[i].line = 0; if (r - l > 1) { int middle = (l + r)/2; build(l, middle, 2*i + 1); build(middle, r, 2*i + 2); } } //更新测度m void update_m(int i) { if (node[i].count > 0) node[i].m = y[node[i].right] - y[node[i].left]; else if (node[i].right - node[i].left == 1) node[i].m = 0; else { node[i].m = node[2*i + 1].m + node[2*i + 2].m; } } //更新line void update_line(int i) { if (node[i].count > 0) { node[i].lbd = 1; node[i].rbd = 1; node[i].line = 1; } else if (node[i].right - node[i].left == 1) { node[i].lbd = 0; node[i].rbd = 0; node[i].line = 0; } else { node[i].lbd = node[2*i + 1].lbd; node[i].rbd = node[2*i + 2].rbd; node[i].line = node[2*i + 1].line + node[2*i + 2].line - node[2*i + 1].rbd*node[2*i + 2].lbd; } } void insert(int l, int r, int i) { //在这里要取离散化之前的原值进行比较 if (y[node[i].left] >= l && y[node[i].right] <= r) (node[i].count)++; else if (node[i].right - node[i].left == 1) return; else { int middle = (node[i].left + node[i].right)/2; if (r <= y[middle]) insert(l, r, 2*i + 1); else if (l >= y[middle]) insert(l, r, 2*i + 2); else { insert(l, y[middle], 2*i + 1); insert(y[middle], r, 2*i + 2); } } update_m(i); update_line(i); } void remove(int l, int r, int i) { ////在这里要取离散化之前的原值进行比较 if (y[node[i].left] >= l && y[node[i].right] <= r) (node[i].count)--; else if (node[i].right - node[i].left == 1) return; else { int middle = (node[i].left + node[i].right)/2; if (r <= y[middle]) remove(l, r, 2*i + 1); else if (l >= y[middle]) remove(l, r, 2*i + 2); else { remove(l, y[middle], 2*i + 1); remove(y[middle], r, 2*i + 2); } } update_m(i); update_line(i); } bool cmp(struct ScanLine line1, struct ScanLine line2) { if (line1.x == line2.x) return line1.flag > line2.flag; return (line1.x < line2.x); } int main() { int n; scanf("%d", &n); int x1, y1, x2, y2; int i = 0; while (n--) { scanf("%d %d %d %d", &x1, &y1, &x2, &y2); scan[i].x = x1; scan[i].y1 = y1; scan[i].y2 = y2; scan[i].flag = 1; y[i++] = y1; scan[i].x = x2; scan[i].y1 = y1; scan[i].y2 = y2; scan[i].flag = 0; y[i++] = y2; } sort(y, y + i); sort(scan, scan + i, cmp); //y数组中不重复的个数 int unique_count = unique(y, y + i) - y; //离散化,建立线段树 build(0, unique_count - 1, 0); int perimeter = 0; int now_m = 0; int now_line = 0; for (int j = 0; j < i; j++) { if (scan[j].flag) insert(scan[j].y1, scan[j].y2, 0); else remove(scan[j].y1, scan[j].y2, 0); if (j >= 1) perimeter += 2*now_line*(scan[j].x - scan[j-1].x); perimeter += abs(node[0].m - now_m); now_m = node[0].m; now_line = node[0].line; } printf("%d\n", perimeter); return 0; }
本文介绍如何使用线段树、离散化及扫描线算法解决POJ1177问题。通过构建结构体记录扫描线信息,并对线段树节点进行详细定义,实现对多个矩形区域的覆盖计算。
2616

被折叠的 条评论
为什么被折叠?



