欢迎扫码关注公众号:公子淮因

一、前言
规范,能避免低级错误,能提高工作效率!
之前习惯了用CAD来出工程图,首先要从creo里面导成2d,然后再标注。最痛苦的莫过于3d有什么改动时,需要重新导一遍,同时那些不同公差需要切换标注模式,总之这种方法很繁琐。
最近同事兆飞一直在纠正我的标注坏习惯,那些规范大学里面都学过,只是工作后养成一些不好的习惯,这次重新规范起来。
二、简介
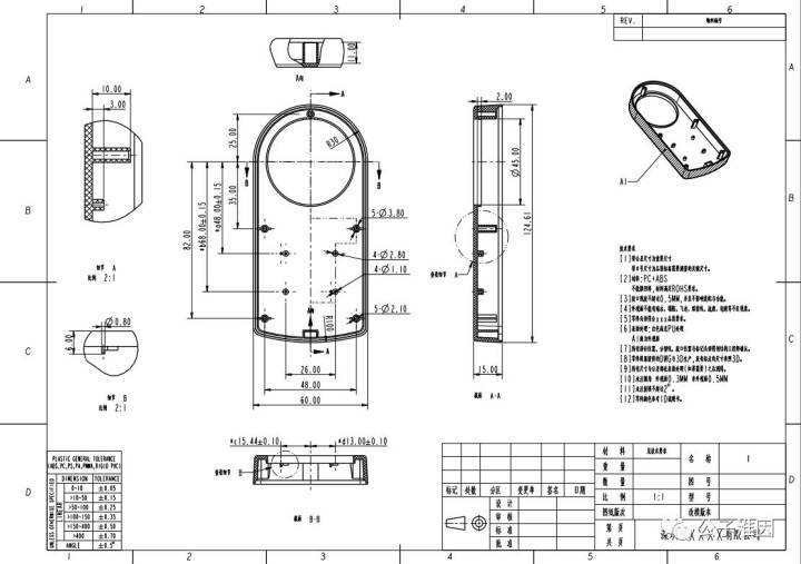
在网上找图纸画了一个比较简单的塑胶壳。

三、标注前的准备
1,重定向一个尽量能看清所有特征的视图,保存,可以命名为3D。

2,在creo里面新建一个绘图,然后选择图框并加载配置文件。(需要配置文件和图框的可以私信我。)

四、标注思路
一般我的标注思路是:外观---技术要求---外形尺寸---boss柱和定位柱---其他特征和装配。
工程图主要是表示清楚一个零件(组件)的尺寸公差、形位公差和表面粗糙度。而一般塑胶件基本上都是标尺寸公差、形位公差只标特征相对基准的位置,很少去标同轴度、平行度等,表面粗糙度会在技术要求里面说明。
1,外观
在“布局”里面点击“常规视图”然后选择3d,应用。

把比例设置为0.5,一般3d视角是平面视角的0.5倍。例如如果平面视图的比例是2:1,那么3d视角比例是1:1。3d视角和技术要求一般放在最右侧。

在草绘里面点击选择边,然后把标红的一圈选取出来。

利用“拐角”把选取出来的线条修整成封闭的曲线,然后点击“填充”。最后加上注释,命名为“A1”

2、技术要求
根据情况就可以修改[2]、[6]等。

3、外形尺寸
一般两个视图标注最大的长宽高即可,如果外形比较规则,可以添加一些细节的标注。

4、BOSS柱和定位柱
在“注释”里面点击“显示模型注释”,然后添加轴心和孔心的中心线。我们在标特征的尺寸时,主要是两个方面:a、特征的外形尺寸。b、特征相对基准的距离。
TIPS:基准一般分为:设计基准和制造基准,理论上制造基准是要符合设计基准的。但是我们标的工程图是到时候拿到实物来比对的,所以基准一般要按照好测量,重要定位来制定。

这里选取的圆形定位槽的中心线作为基准,标好位置和boss柱外形后,boss柱还不算完整,还需要把boss柱内部结构和高度标识清楚,这样就需要做剖面了。
TIPS:圆的标注一般是双箭头,圆弧的标注是单箭头。

在3D里面做一个阶梯剖面,把相关特征都剖进去。命名为“A”。
TIPS:剖面分为直线剖、阶梯剖、局部剖。

编辑红色框的这个视图,在截面里面添加成"A"。然后添加剖面箭头调整细节。

修改剖面的线性,将斜线改为地形线。下面附一张各种材料剖面线的表格。


在布局里面添加详细视图,然后在详细视图里面标注BOSS柱的高度,这里差不多就完成了这部分的标注。
TIPS:在详细视图选完范围后,可以按照系统自动生成的圆圈再画一遍范围线,这样详细视图的边缘会好看一点。


5、其他特征
按照跟boss柱差不多的方式,把其他特征标识清楚。常用的有:详细视图,辅助视图,局剖,阶梯剖。

下图是辅助视图+局部显示+局剖,主要是当一些细节需要交代,但是又不需要整个剖面和整个视图时,可以这样做。

6、完善细节
添加一些参照线,将尺寸对齐等间距放置。操作步骤是“注释”---“编辑”---“创建捕捉线”,捕捉线在PDF里面是不显示的。

添加一个公差表格,未标注的公差的尺寸参照表格执行。

重点尺寸加*号和字母编号,并且标上公差。
TIPS:一般重点尺寸为定位,容易变形的外观,其他重要特征等。

最后导出PDF,然后保存。

补充:带拔模角度的孔和轴的标注方式
带拔模的轴,是标注最大轴径,后缀加上拔模角度。
带拔模的孔,是标最小的孔径,后缀加上拔模角度。


本文介绍了使用CREO进行塑胶件工程图规范化的流程,包括外观、技术要求、外形尺寸、boss柱和定位柱的标注方法,强调了尺寸公差、形位公差和表面粗糙度的重要性。通过实例详细讲解了各标注步骤,帮助提升工程图绘制效率。
2470

被折叠的 条评论
为什么被折叠?



