在三维模型的草图中已经做好尺寸的标注,怎样可以直接将这些标注带到工程图中呢?


1.在草图中做好相应的定形尺寸、定位尺寸标注


2.生成工程图的时候,点击【显示零件标注】、【选择零件的3D曲线】按钮使其处于启用状态

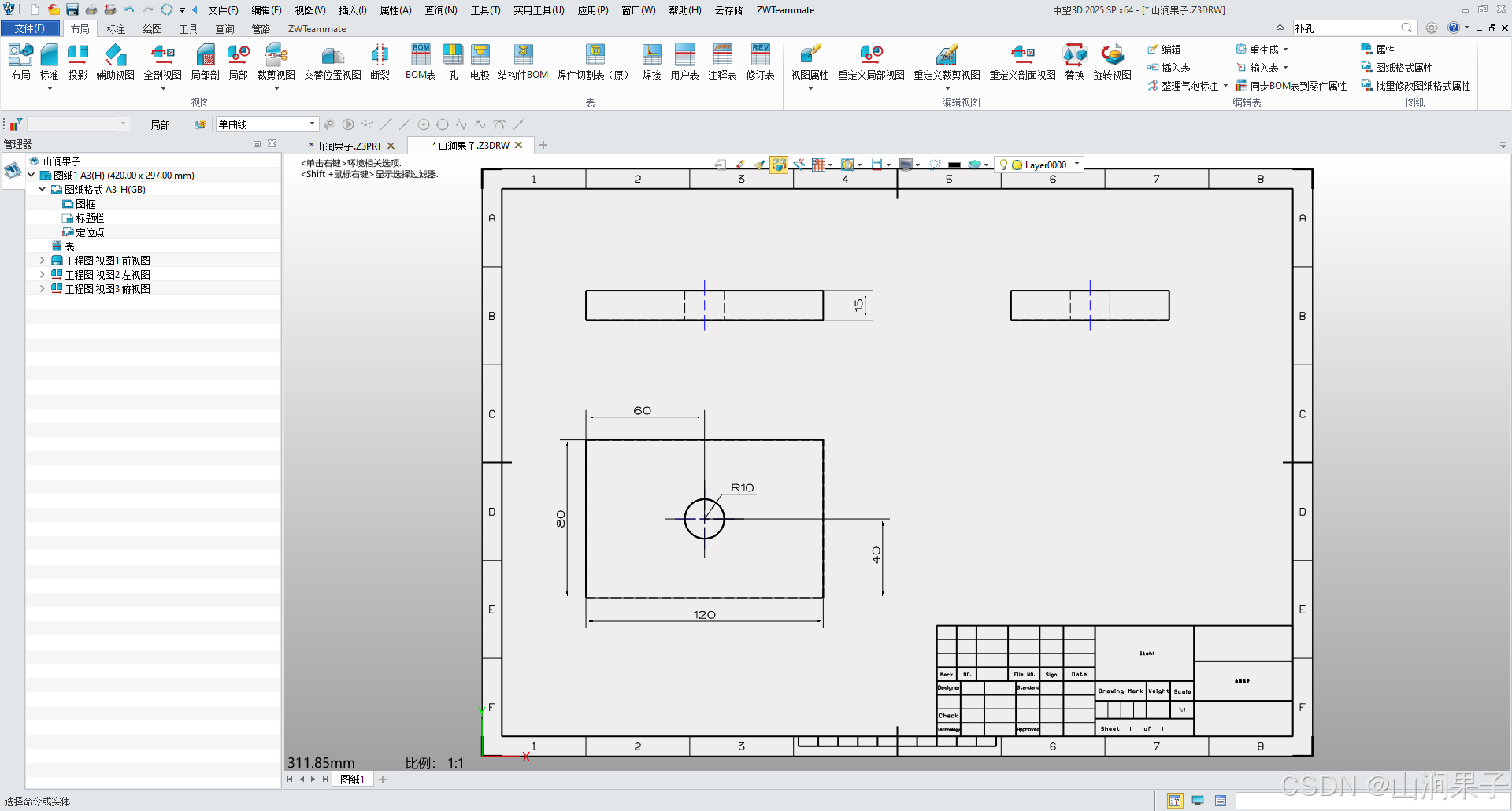
3.进行视图投影即可继承草图中的尺寸,如图所示

在三维模型的草图中已经做好尺寸的标注,怎样可以直接将这些标注带到工程图中呢?


1.在草图中做好相应的定形尺寸、定位尺寸标注


2.生成工程图的时候,点击【显示零件标注】、【选择零件的3D曲线】按钮使其处于启用状态

3.进行视图投影即可继承草图中的尺寸,如图所示

2810
955
1238

被折叠的 条评论
为什么被折叠?